GastroModul: En Flyttbar Inkomstkälla Som Växer Tillsammans Med Ditt Företag
En dynamisk lösning för din vision
GastroModul, ett unikt koncept av modulära byggnader, förkroppsligar den perfekta balansen mellan intelligens och flexibilitet. Dessa innovativa konstruktioner är formgivna för att anpassas och utvecklas i takt med dina behov. Oavsett om du är på brinken till att lansera ett nytt gastronomiskt koncept, eller om du önskar expandera en befintlig verksamhet, representerar en investering i en GastroModul en investering i ditt företags framtid och varumärke.
Modulära Byggnader: Flexibilitet och Hållbarhet
Vår GastroModul är resultatet av att sammansmälta hållbarhet med flexibilitet. Dessa kostnadseffektiva byggnader kan kombineras på olika sätt för att skapa en funktionell och praktisk struktur, som uppfyller nödvändiga krav. Oavsett om du planerar att placera din verksamhet på en livlig strand, vid en tågstation, eller inuti en exotisk asiatisk marknadsplats är GastroModul svaret.
Dessutom kan modulbyggnaderna enkelt demonteras och flyttas, vilket gör dem till en attraktiv lösning för företag som behöver temporära byggnader eller de som vill kunna flytta sin verksamhet i framtiden. Detta ger dig frihet att växla platser, för att anpassa sig till marknadens föränderligheter och dra nytta av nya möjligheter.


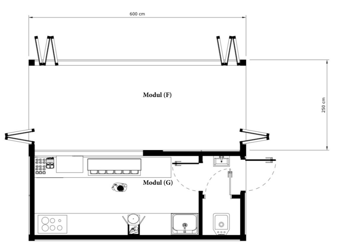
Modul - Singelmodul (G) utan wc
Modulen är en singelmodul (G) utan wc och består av olika byggelement som kombineras för att skapa en funktionell och mångsidig struktur. Här beskrivs de olika delarna och deras egenskaper:
Modulens dimensioner:
- Bredd utvändigt: 2500 mm
- Lång utvändig ram: 6000 mm
- Utvändig höjd: 3000 mm
- Invändig höjd: 2500 mm
- Total yta: 15 m2
- Stålram: 1 enhet (6000 mm x 2500 mm)
Väggar:
- Fasadvägg (utsida): Tillverkad av en 3 mm tjock STACBOND aluminiumkompositpanel i vit färg. Denna panel ger både estetiskt tilltalande utseende och skydd mot yttre påverkan.
- Fasadbakvägg: Tillverkad av en halvmillimeter tjock stålplåt i vit färg (RAL 9010). Denna vägg ger strukturell styrka och skydd mot yttre påverkan.
- Isolering: En 120 mm tjock PIR-skumisolering används för att ge utmärkt termisk effektivitet med ett U-värde på 0,19.
- Invändig vägg: Tillverkad av en halvmillimeter tjock slät stålplåt i krämig vit färg (RAL 9010). Denna vägg skapar avskildhet mellan olika delar av modulen och ger strukturell styrka.
Tak:
- Huvudstålkonstruktion: En robust stålram används för att ge stadga och stöd till taket.
- Metallplatta med stående söm: Takets yttre skikt består av en metallplatta med stående söm av tjocklek 0,5 mm och färgen RAL 9006. Detta ger en estetiskt tilltalande yta och skydd mot yttre påverkan.
- Foli och takmembran: En ångspärrfolie används för att förhindra fuktintrång. Takmembranet ger extra skydd mot väder och vind.
- Konstruktionsvirke: En stabil träkonstruktion av C24-kvalitet används för att ge struktur och stöd till taket.
- Isolering: Ett skikt av 150 mm ullisolering bidrar till att hålla modulen välisolerad och energieffektiv.
- Lätt träskiva: Taket täcks av en 18 mm tjock lätt träskiva i vitt, vilket ger en ren och ljus interiör.
Golv:
- Huvudstålkonstruktion: En stark och hållbar stålplåt med en tjocklek på 0,5 mm används som bas för golvet.
- Ångspärr: En folie används för att förhindra fuktintrång från marken.
- Konstruktionsvirke: Träkonstruktionen av C24-kvalitet ger stabilitet och hållbarhet åt golvet.
- Isolering: En 100 mm tjock ullisolering bidrar till att bibehålla en behaglig temperatur och energieffektivitet.
- Golvmembran: En folie används som skydd mot fukt och fuktintrång.
- PVC-golv: Ett skikt av 40 mm tjock PVC-golv i grå färg ger en robust och hållbar yta.
Fönster:
- Öppningsbart ALU-fönster: Ett fönster med antracitfärgade aluminiumramar och glas med en vikt av 4/16/4 används. Fönstret har dimensionerna 2100×3000 och ger ljusinsläpp och möjlighet till utsikt.
- ALU rulljalusi utvändigt: Ett rulljalusi för användning utvändigt, med dimensionerna 2100×3000, används för att ge skydd och insynsskydd.
Dörrar:
- Ståldörr: En ståldörr med dimensionerna 800×2050 används som en av ingångarna till modulen.
El och belysning:
- LED-lampor: Modulen är utrustad med 4 stycken LED-lampor för belysning.
- Sockel: 8 stycken eluttag finns tillgängliga för anslutning av elektroniska apparater och utrustning.
- 360-volts uttag: 3 stycken 360-volts uttag används för att ansluta elapparater.
- Strömbrytare: En strömbrytare används för att kontrollera och reglera belysningen.
- Eldosa: En eldosa används för elektrisk anslutning.
Ventilation och uppvärmning:
- Gravity ventilation: Det finns 2 stycken 100 mm tjocka väggventiler för naturlig luftcirkulation.
Beskrivning:
Denna Singelmodul (G) är resultaten av noggrant konstruktionsarbete och användning av material av högsta kvalitet, utformad för att ge en robust och flexibel struktur. Modulens mångsidighet gör den till den perfekta lösningen för en rad användningsområden, alltifrån att skapa en lyxig cateringstation för exklusiva smörgåsar, asiatisk wok eller fräscha veganska alternativ, till att fungera som ett effektivt kontor, en stilren walk-in closet, en inbjudande reception eller en innovativ popup-butik.
Med välisolerade väggar, tak och golv, skapar modulen en behaglig inomhusmiljö, oavsett årstid. Dess effektiva ventilationssystem garanterar god luftkvalitet, vilket är avgörande för såväl arbetsplats som matlagning. Singelmodulen (G) representerar ett smart och värdefullt tillskott för alla som söker en snabb, flexibel och mångsidig lösning. Dess kompakta storlek och höga funktionalitet gör den till ett perfekt val för en rad olika ändamål.
Modul - Singelmodul (G) med wc
Modulen är en singelmodul (G) med wc och består av olika byggelement som kombineras för att skapa en funktionell och mångsidig struktur. Här beskrivs de olika delarna och deras egenskaper:
Modulens dimensioner:
- Bredd utvändigt: 2500 mm
- Lång utvändig ram: 6000 mm
- Utvändig höjd: 3000 mm
- Invändig höjd: 2500 mm
- Total yta: 15 m2
- Stålrama: 1 enhet (6000 mm x 2500 mm)
Väggar:
- Fasadvägg (utsida): Tillverkad av en 3 mm tjock STACBOND aluminiumkompositpanel i vit färg. Denna panel ger både estetiskt tilltalande utseende och skydd mot yttre påverkan.
- Fasadbakvägg: Tillverkad av en halvmillimeter tjock stålplåt i vit färg (RAL 9010). Denna vägg ger strukturell styrka och skydd mot yttre påverkan.
- Isolering: En 120 mm tjock PIR-skumisolering används för att ge utmärkt termisk effektivitet med ett U-värde på 0,19.
- Invändig vägg: Tillverkad av en halvmillimeter tjock slät stålplåt i krämig vit färg (RAL 9010). Denna vägg skapar avskildhet mellan olika delar av modulen och ger strukturell styrka.
Tak:
- Huvudstålkonstruktion: En robust stålram används för att ge stadga och stöd till taket.
- Metallplatta med stående söm: Takets yttre skikt består av en metallplatta med stående söm av tjocklek 0,5 mm och färgen RAL 9006. Detta ger en estetiskt tilltalande yta och skyddar mot yttre påverkan.
- Foli och takmembran: En ångspärrfolie används för att förhindra fuktintrång. Takmembranet ger extra skydd mot väder och vind.
- Konstruktionsvirke: En stabil träkonstruktion av C24-kvalitet används för att ge struktur och stöd till taket.
- Isolering: Ett skikt av 150 mm ullisolering bidrar till att hålla modulen välisolerad och energieffektiv.
- Lätt träskiva: Taket täcks av en 18 mm tjock lätt träskiva i vitt, vilket ger en ren och ljus interiör.
Golv:
- Huvudstålkonstruktion: En stark och hållbar stålplåt med en tjocklek på 0,5 mm används som bas för golvet.
- Ångspärr: En folie används för att förhindra fuktintrång från marken.
- Konstruktionsvirke: Träkonstruktionen av C24-kvalitet ger stabilitet och hållbarhet åt golvet.
- Isolering: En 100 mm tjock ullisolering bidrar till att bibehålla en behaglig temperatur och energieffektivitet.
- Golvmembran: En folie används som skydd mot fukt och fuktintrång.
- Golvmembrancementskiva: Ett lager av 40 mm tjock golvmembrancementskiva ger stabilitet och hållbarhet åt golvet.
- PVC-golv: Golvet täcks av ett PVC-golv i grå färg för en ren och slitstark yta.
Fönster:
- Öppningsbart ALU-fönster: Ett fönster med antracitfärgade aluminiumramar och glas med en vikt av 4/16/4 används. Fönstret har dimensionerna 2100×3000 och ger ljusinsläpp och möjlighet till utsikt.
- ALU rulljalusi utvändigt: Ett rulljalusi för användning utvändigt, med dimensionerna 2100×3000, används för att ge skydd och insynsskydd.
Dörrar:
- Ståldörrar: En ståldörr med dimensionerna 800×2050 används som en av ingångarna till modulen.
- MDF-dörr invändigt: Två interna MDF-dörrar med dimensionerna 800×2000 och vit färg används.
Elektricitet:
- LED-lampor: Modulen är utrustad med 6 stycken LED-lampor för belysning.
- Eluttag: Det finns 10 stycken 360-volts eluttag för att ansluta elektroniska apparater och utrustning.
- Strömbrytare: En strömbrytare används för att kontrollera och reglera belysningen.
- Eldosa: En eldosa används för elektrisk anslutning.
WC:
- Toalett: En toalett används för sanitära behov.
- Handfat: Ett handfat används för att tvätta händerna.
Ventilation och uppvärmning:
- Gravitationsventilation: Det finns 2 stycken 100 mm tjocka väggventiler för naturlig luftcirkulation.
- Mekanisk ventilation: Det finns 1 st 100 mm tjockt mekaniskt ventilationssystemt för att säkerställa en god luftkvalitet inom modulen.
Beskrivning:
Denna Singelmodul (G) med wc är konstruerad med precision och högkvalitativa material, vilket ger en robust och funktionell struktur för en mängd olika ändamål. Med utmärkt isolering och effektiva ventilationssystem säkerställs en bekväm och hälsosam inomhusmiljö, perfekt för att skapa det ultimata köket för gedigen husmanskost, sensationella smashburgers, eller ditt nästa tacohak. Alternativt kan modulen användas som café, glassbar, kiosk, shotlucka eller till och med sommarstuga, tack vare dess flexibla design och hållbarhet. Dess välgenomtänkta konstruktion erbjuder både funktionalitet och estetik, vilket gör den till en värdefull tilläggslösning för alla typer av utrymmesbehov.


Modul - Singelmodul (F)
Modulen, singelmodul (F), är konstruerad med noggrannhet och noggrant utvalda material för att skapa en funktionell och mångsidig struktur. Här beskrivs de olika delarna och deras egenskaper:
Byggnadens dimensioner:
- Bredd utvändigt: 2500 mm
- Lång utvändig ram: 6000 mm
- Utvändig höjd: 3000 mm
- Invändig höjd: 2500 mm
- Total yta: 15 m2
- Stålram: 1 enhet (6000 mm x 2500 mm)
Tak:
- Huvudstålkonstruktion: En stark och robust stålram används för att ge stadga och stabilitet till taket.
- Metallplåt med stående söm: Takets yttre skikt består av en metallplåt med stående söm av tjocklek 0,5 mm och färgen RAL 9006. Detta ger både estetisk tilltalande utseende och skydd mot yttre påverkan.
- Foli och takmembran: En ångspärrfolie används för att förhindra fuktintrång. Takmembranet ger ytterligare skydd mot väder och vind.
- Konstruktionsvirke: En stabil träkonstruktion av C24-kvalitet används för att ge stöd och struktur till taket.
- Isolering: Ett 150 mm tjockt lager av ullisolering bidrar till att hålla modulen välisolerad och energieffektiv.
- Lätt träskiva: Taket täcks av en 18 mm tjock lätt träskiva i vitt, vilket skapar en ren och ljus interiör.
Golv:
- Huvudstålkonstruktion: En hållbar och stark stålplåt med en tjocklek på 0,5 mm används som bas för golvet.
- Ångspärr: En folie används som ångspärr för att förhindra fuktintrång från marken.
- Konstruktionsvirke: Träkonstruktionen (C24) ger stabilitet och hållbarhet åt golvet.
- Isolering: Ett 100 mm tjockt lager av ullisolering bidrar till att bibehålla en behaglig temperatur och energieffektivitet.
- Golvmembran: En folie används som skydd mot fukt och fuktintrång.
- Cementskiva: Ett 40 mm tjockt lager av cementskiva ger stabilitet och hållbarhet åt golvet.
- PVC-golv: Golvet täcks med ett slitstarkt PVC-golv i grå färg för en ren och hållbar yta.
Fönster:
- Öppningsbara ALU-fönster: Två fönster med antracitfärgade aluminiumramar och glas med en vikt av 4/16/4 används. Fönstret har dimensionerna 2100×6000 och ger ljusinsläpp och möjlighet till utsikt.
- Öppningsbara ALU-fönster: Två fönster med antracitfärgade aluminiumramar och glas med en vikt av 4/16/4 används. Fönstren har dimensionerna 2100×2200 och ger ljusinsläpp och möjlighet till utsikt.
Elektricitet:
- LED-lampor: Modulen är utrustad med 4 stycken LED-lampor för belysning.
- Sockel: En sockel används för att ansluta elektroniska apparater och utrustning.
- 360-volts socklar: Tre stycken 360-volts socklar används för att ansluta elektroniska apparater och utrustning.
- Ljusströmbrytare: En ljusströmbrytare används för att kontrollera och reglera belysningen.
Beskrivning:
Den här Singelmodul (F) är skapad med precision och material av högsta kvalitet, vilket ger en funktionell och mångsidig struktur, redo att omfamna dina behov. Med sina generösa skjutfönster, som fungerar som dörrar, är denna modul en sann symbol för frihet. Med en yta på 15 m2 erbjuder den den perfekta servicemiljön, eller så kan den bli det ideala utrymmet för en lounge, yoga studio, uterum eller lobby. Med högpresterande isolering och en stabil struktur ger Singelmodul (F) inte bara en inbjudande och bekväm atmosfär, utan också en energieffektiv lösning för alla säsonger. Konstruerad med en känsla av komplex kärlek, är denna modul ett mångsidigt och tillförlitligt val för din verksamhet, vare sig det är för tillfälliga behov eller långsiktiga planer.
Överlägsna jämfört med traditionella konstruktioner
Jämfört med traditionella byggmetoder, ger modulsystemet en rad överlägsna fördelar. Tillverkningen av modulerna och kvalitetskontrollen säkerställs bättre, eftersom fabriksförhållandena är mer kontrollerade än på en traditionell byggarbetsplats. Detta ger inte bara ekonomiska fördelar, men reducerar också tiden det tar att färdigställa strukturen, då större delen av arbetet utförs i fabriken. Därmed blir GastroModul ett mer ekonomiskt alternativ, då tillverkningsprocessen kan automatiseras och kostnaderna därmed kontrolleras bättre.
Realisera ditt drömkoncept med GastroModul
Hos GastroModul är vår största strävan att erbjuda lösningar som matchar din vision. Kanske har du en vision om att skapa en self-service variant på livsmedelsbutiker som Coop, Ica eller Willys, eller ett kaffe lounge-koncept som går bortom Espresso House, med kaffe från amerikanska regnskogar och choklad från Perus kakaoplantager. Kanske ser du en framtid med att utveckla en gourmetrestaurang som ett tillägg till befintliga fastfood-destinationer som McDonald's, Burger King eller Max Hamburgerrestaurang. Vilka dina drömmar än är, erbjuder vi fullt designade modulsystem, anpassade efter dina specifika behov, inklusive arkitektritningar, transport och montering. Låt GastroModul hjälpa dig att förverkliga ditt koncept.




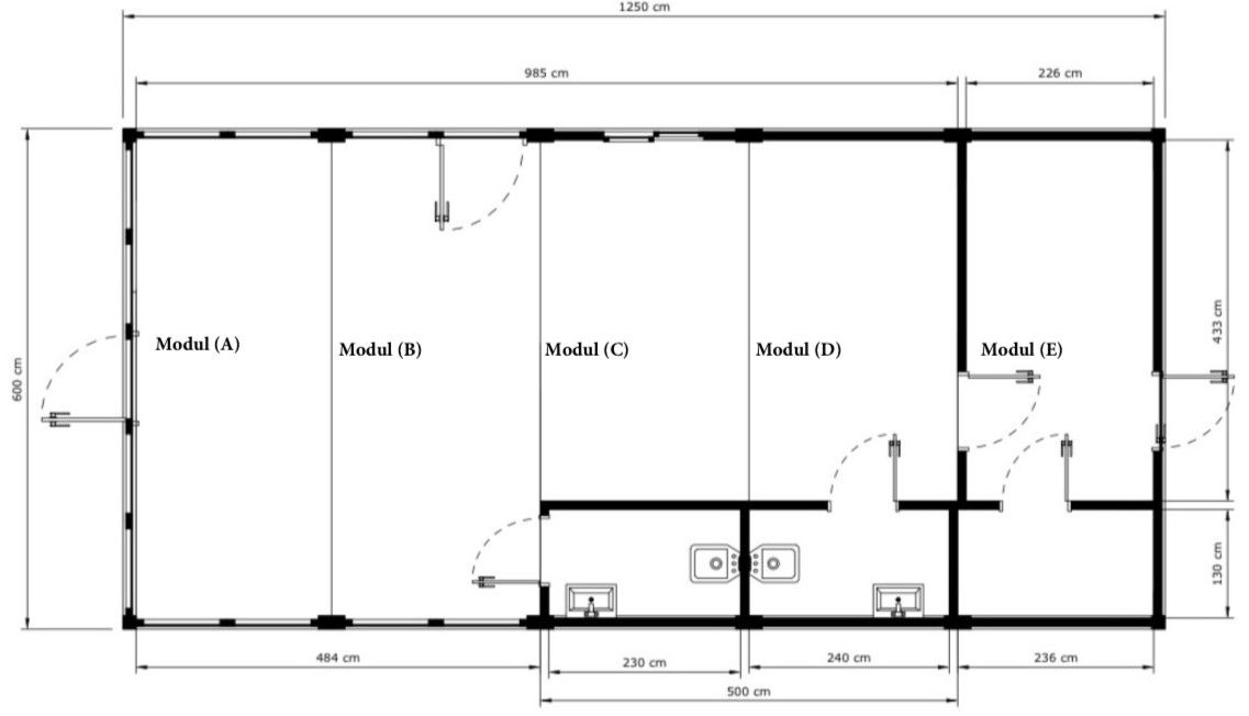
Modul - fyra stycken byggelement (A+C+D+E)
Modulen är en kombination av fyra olika byggelement (A+C+D+E) som tillsammans skapar en funktionell och mångsidig struktur. Här nedan beskrivs varje del och deras egenskaper:
Byggnadens dimensioner:
- Bredd utvändigt: 10000 mm
- Lång utvändig ram: 6000 mm
- Utvändig höjd: 3000 mm
- Invändig höjd: 2500 mm
- Total yta: 60 m2
- Stålramar: 4 enheter (6000 mm x 2500 mm)
Väggar:
- Fasadvägg: Tillverkad av en halvmillimeter tjock stålplåt i en slät vit aluminiumfärg (RAL 9006). Det används isolering av 120 mm PIR-skum med en U-värde på 0,19 för att ge en hög isolerande effekt.
- Invändig vägg: Tillverkad av en halvmillimeter tjock slät stålplåt i en vit färg (RAL 9010). Denna vägg ger strukturell styrka och skapar avgränsning mellan olika delar inom modulen.
Tak:
- Huvudstålkonstruktion: En stark och stabil stålram används för att ge stadga och stöd åt taket.
- Metallplatta med stående söm: Taket täcks av en 0,5 mm tjock metallplatta med stående söm i en antracitfärgad ton (RAL 9006). Detta ger både en estetiskt tilltalande yta och skydd mot yttre påverkan.
- Foli och takmembran: En ångspärrfunktion tillhandahålls genom användning av folie, vilket förhindrar fuktintrång. Ett takmembran läggs också till för extra skydd mot väderförhållanden.
- Konstruktionsvirke: En ram av träbalkar av C24-kvalitet används för att ge struktur och stöd till taket.
- Isolering: 150 mm tjock ullisolering används för att bibehålla en behaglig inomhustemperatur och förbättra energieffektiviteten.
- Lätt träskiva: Taket täcks av en 18 mm tjock lätt träskiva i vitt, vilket ger en ren och ljus interiör.
Golv:
- Huvudstålkonstruktion: En robust stålplåt med en tjocklek av 0,5 mm används som bas för golvet.
- Ångspärr: En folie används för att förhindra fuktintrång från marken.
- Konstruktionsvirke: Träkonstruktionen (C24) ger stabilitet och hållbarhet åt golvet.
- Isolering: En 100 mm tjock ullisolering används för att bibehålla en behaglig inomhustemperatur och förbättra energieffektiviteten.
- Golvmembran: En folie används som skydd mot fukt och fuktintrång.
- Cementskiva: En 40 mm tjock cementskiva ger stabilitet och hållbarhet åt golvet.
- Rocco kakelimitation: En 4 mm tjock kakelimitation i kashmirfärg används för att ge en attraktiv yta på golvet.
Skiljeväggar:
- Sandwichpanel: Skiljeväggarna består av 100 mm tjocka EPS-sandwichpaneler i vitt. Dessa paneler ger både isolering och strukturell styrka för att skapa separata utrymmen inom modulen.
Fönster:
- Det används olika typer av fönster i modulen:
- 7 st ej öppningsbara PVC-fönster med antracit- och vitfärgade ramar, glas med en vikt av 4/16/4 och storlek 1100×2100.
- 1 st öppningsbart PVC-fönster med antracit- och vitfärgade ramar, glas med en vikt av 4/16/4 och storlek 1100×2100.
- 4 st ej öppningsbara PVC-fönster med antracit- och vitfärgade ramar, glas med en vikt av 4/16/4 och storlek 1130×2100.
- 1 st skjutfönster med aluminiumram i antracitfärg, glas med en vikt av 4/16/4 och storlek 1200×700.
Dörrar:
- Ståldörrar: En ståldörr med dimensionerna 900×2050 och antracitfärg används som en av ingångarna till modulen.
- MDF-dörrar: 4 st MDF-dörrar med dimensionerna 800×2000 och vit färg används som interna dörrar.
- PVC-dörr: 1 st ytterdörr med antracitfärgad ram och glas med en vikt av 4/16/4 och dimensionerna 1130×2100 används som en annan ingång.
Elektricitet:
- LED-lampor: Modulen är utrustad med 15 st LED-lampor för belysning.
- Socklar: Det finns 15 st eluttag på 360 volt för anslutning av elektroniska apparater och utrustning.
- Ljusströmbrytare: 6 st ljusströmbrytare används för att kontrollera och reglera belysningen.
- Elbox: En elbox används för att hantera och distribuera elektricitet i modulen.
Ventilation och uppvärmning:
- Gravitationsventilation: Det finns 2 st 100 mm tjocka väggventiler för naturlig luftcirkulation.
- Mekanisk ventilation: Det finns 4 st 100 mm tjocka mekaniska ventilationssystem för att säkerställa en god luftkvalitet inom modulen.
Badrum och VVS:
- WC: 2 st toaletter används för sanitära behov.
- Handfat: 2 st handfat används för handtvätt.
- Diskbänk: 1 st diskbänk används för andra behov.
- Elvärmare Panna: En 50 liters panna används för att producera varmvatten för sanitära ändamål.
Beskrivning:
Denna kombination av fyra byggelement (A+C+D+E), är en egen division som representerar en värld av potential. Med totalt 60m2 som badar i ljus, erbjuder modul (A) en öppen och inbjudande plats för gästinteraktion, kanske med behagliga sittplatser eller självbetjäningsdisplayer. Den integrerade WC i modul (C) erbjuder gästerna tillgång till bekvämligheter, samtidigt som denna yta även kan lämpa sig väl för exempelvis en kassahanteringsdisk eller ett serveringsfönster för bekväm service.
I modul (D) får personalen egen WC och gott om utrymme för att inrätta ett kök eller annan arbetsyta. Modul (E), å andra sidan, rymmer ett tekniskt rum för hantering av byggnadens funktionalitet och erbjuder ytterligare utrymme för möjliga ändamål såsom ett större diskutrymme, omklädningsrum eller lager. Eller varför inte ta bort väggen och inrätta ditt drömkök? Möjligheterna är oändliga i denna modul.
Modulen representerar inte bara en byggnad, utan en plats där företaget kan utvecklas och blomstra. Det är en struktur som erbjuder allt du behöver för att göra verksamheten till en framgång. Detta är världen du har skapat och modulen är den flexibla, robusta och välbyggda ramen som ger dig friheten att forma den efter dina önskemål.


Modul - fem stycken byggelement (A+B+C+D+E)
Modulen är en kombination av fem stycken byggelement som är avsedda för att skapa en funktionell och mångsidig struktur. Nedan beskrivs de olika delarna och deras egenskaper:
Byggnadens dimensioner:
- Bredd utvändigt: 12500 mm
- Ram längd utvändigt: 6000 mm
- Höjd utvändigt: 3000 mm
- Höjd invändigt: 2500 mm
- Total yta: 75 m2
- Stålramar: 5 st (6000 mm x 2500 mm)
Väggar:
- Fasadvägg (utsida): Tillverkad av en halvmillimeter tjock stålplåt i en fräsch slät vit aluminiumfärg (RAL 9006). Stålramen är omgiven av 120 mm PIR-skum, vilket ger en isolerande effekt med ett U-värde på 0,19.
- Invändig vägg: Tillverkad av en halvmillimeter tjock slät stålplåt i en krämigt vit färg (RAL 9010). Denna vägg ger strukturell styrka och skapar avskildhet mellan olika delar av modulen.
Tak:
- Stålkonstruktion: En robust ram av stål som ger stadga och stöd för taket.
- Metallplatta med stående söm: Takets yttre skikt består av en metallplatta med stående söm av tjocklek 0,5 mm och färgen RAL 9006. Detta ger ett estetiskt tilltalande utseende och skyddar mot yttre påverkan.
- Foli och takmembran: En folie används som ångspärr för att förhindra fuktintrång. Takmembranet ger ytterligare skydd mot väder och vind.
- Konstruktionsvirke: En stabil träkonstruktion (C24) används för att ge stöd och struktur till taket.
- Isolering: Ett skikt av 100 mm ullisolering bidrar till att hålla modulen välisolerad och energieffektiv.
- Lätt träskiva: Taket täcks av en 18 mm tjock lätt träskiva i vitt, vilket ger en ren och ljus interiör.
Golv:
- Stålkonstruktion: En stark och hållbar stålplåt med en tjocklek på 0,5 mm används som bas för golvet.
- Ångspärr: En folie används för att förhindra fuktintrång från marken.
- Konstruktionsvirke: Träkonstruktionen (C24) ger stabilitet och hållbarhet åt golvet.
- Isolering: En 100 mm tjock ullisolering bidrar till att bibehålla en behaglig temperatur och energieffektivitet.
- Golvmembran: En folie används som skydd mot fukt och fuktintrång.
- Cementskiva: Ett lager av 40 mm tjock cementskiva ger hållbarhet och stabilitet åt golvet.
- Rocco kakelimitation: En 4 mm tjock kakelimitation med kashmirfärg ger en estetiskt tilltalande yta.
Skiljeväggar:
- Smörgåspanel: Skiljeväggarna består av 100 mm tjocka EPS-smörgåspaneler i vitt. Dessa paneler ger både isolering och strukturell styrka för att skapa olika utrymmen och rum inom modulen.
Fönster:
- Flera olika typer av fönster används i modulen:
- PVC-fönster: 7 st fönster med antracit- och vitfärgade ramar, glas med en vikt av 4/16/4 och storlek 1100×2100, som inte kan öppnas.
- PVC-fönster: 1 st öppningsbart fönster med antracit- och vitfärgade ramar, glas med en vikt av 4/16/4 och storlek 1100×2100.
- PVC-fönster: 4 st fönster med antracit- och vitfärgade ramar, glas med en vikt av 4/16/4 och storlek 1130×2100, som inte kan öppnas.
- Aluminiumfönster: 1 st skjutfönster med antracitfärgad ram, glas med en vikt av 4/16/4 och storlek 1200×700.
Dörrar:
- Ståldörr: En ståldörr med dimensionerna 900×2050 och färgen antracit används som en av ingångarna till modulen.
- MDF-dörr: 4 st MDF-dörrar med dimensionerna 800×2000 och färgen vit används som interna dörrar.
- PVC-dörr: 1 st ytterdörr med antracitfärgad ram och glas med en vikt av 4/16/4 och dimensionerna 1130×2100 används som en annan ingång.
El och belysning:
- LED-lampor: Modulen är utrustad med 15 st LED-lampor för belysning.
- Eluttag: Det finns 15 st 360-volts eluttag för att ansluta elektroniska apparater och utrustning.
- Strömbrytare: 6 st strömbrytare används för att kontrollera och reglera elströmmen.
- Elcentral: En elcentral används för att fördela och hantera elektricitet i modulen.
Badrum och VVS:
- WC: 2 st toaletter används för sanitära behov.
- Handfat: 2 st handfat används för att tvätta händerna.
- Handfat: 1 st handfat används för andra behov.
- Panna: En 50 liters panna används för att producera varmvatten för sanitära ändamål.
Ventilation och uppvärmning:
- Gravity ventilation: 3 st 100 mm tjocka väggventiler används för naturlig luftcirkulation.
- Mekanisk ventilation: 4 st 100 mm tjocka mekaniska ventilationssystem används för att säkerställa en god luftkvalitet i modulen.
Beskrivning:
Denna kollektion består av fem unika moduler - A, B, C, D och E - som representerar en kompromisslös kombination av genomtänkt design och förstklassiga material. Varje modul har sina egna unika egenskaper och bidrar till att skapa en utomordentlig, mångsidig och funktionalitetssäkrad struktur.
Modul A är ljusfylld och erbjuder en öppen och inbjudande yta för kundinteraktion, kanske med bekväma sittplatser eller självbetjäningsstationer. Modul B, med sina stora fönster, är en öppen yta som kan anpassas för olika användningsområden - ett perfekt ställe att visa upp produkter, skapa ett samarbetsområde eller varför inte en lounge?
Modul C ger kunder tillgång till bekvämligheter, samtidigt som den har utrymme för en kassadisk och en serveringslucka. Modul D, å andra sidan, erbjuder personalen ett eget WC samt rikligt med utrymme för att etablera ett kök eller annat arbetsutrymme. Modul E inrymmer ett tekniskt rum för hantering av byggnadens faciliteter.
Dessa moduler täcker en total yta på 75 m2, med ett yttre mått av 12500 mm i bredd och 6000 mm i längd. En utomhus takhöjd på 3000 mm och en inomhus takhöjd på 2500 mm bidrar till att skapa en känsla av rymd och frihet, likt en designlåda. Stora skjutbara fönster som även fungerar som dörrar, införlivar en öppen och välkomnande atmosfär.
Dessa moduler är noggrant tillverkade med högsta precision och kvalitet, vilket resulterar i en flexibel struktur redo att anpassas till dina behov. Deras välisolerade och energieffektiva design garanterar en komfortabel inomhusmiljö året om, vilket gör dem till en lönsam och smart investering för din verksamhet, oavsett om du behöver en snabb lösning för temporärt bruk, eller en långsiktig investering.
Kort sagt, denna modulsamling erbjuder en mycket attraktiv och effektiv lösning för en mängd olika användningsområden.
Comments ()