Tillverka Nästa Unika Koncept Med En Nytillverkad Släpvagn
Steg 1: Fånga Konceptet
Börja med att låta dig själv drömma om din matvagn. Visualisera scener av människor som samlas runt din vagn, lockade av doften från din nylagade mat. Äntligen får din verksamhet expandera.
Steg 2: Designa din Drömvagn
Nu, med konceptet i ditt sinne, börja formge din drömvagn. Förklara för oss hur du tänker dig vagnen så hjälper vi dig att skapa en ritning som matchar dina behov och visioner. Tillsammans utvecklar vi ett estetiskt tilltalande utrymme kombinerat med funktionell design för att du och dina kollegor enklast ska kunna arbeta effektivt.


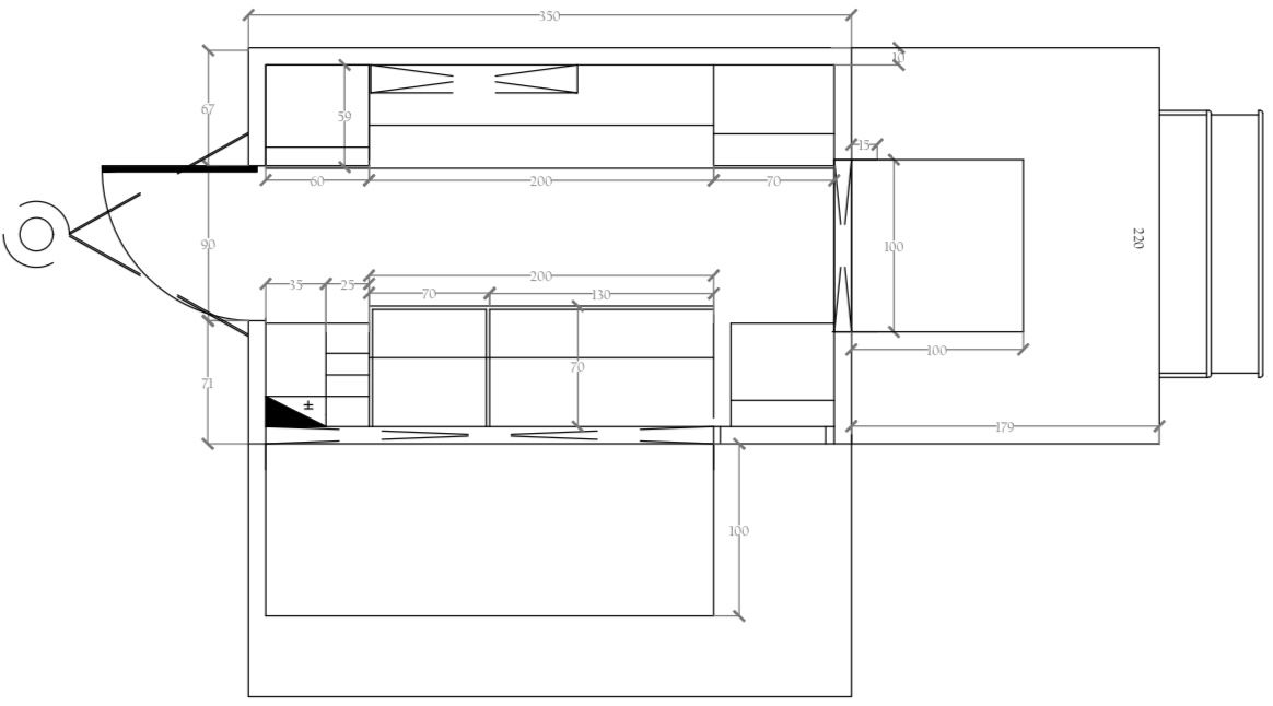
Steg 3: Till 3D-modell
Efter att ha skapat en detaljerad 2D-ritning, tar vi din design till nästa nivå. Din matvagn tar form i en detaljerad 3D-modell, vilket ger dig möjlighet att se din vagn från alla vinklar och bekräfta att varje detalj är precis som du tänkt dig.


Steg 4: Förverkliga Drömmen
Med varje detalj på plats, tar vi din 3D-modell och påbörjar produktion. Vi bygger din matvagn med största omsorg, och vi ser till att varje detalj matchar din 3D-modell. Vi kommer att göra din drömvagn till verklighet, alltid med fokus på kvalitet.
Steg 5: Din matvagn är Klar
När din matvagn är klar, är det dags att öppna luckan och börja servera. Du står där i din nya verksamhet, redo att skapa den mest fantastiska smakupplevelsen, och ditt hantverk kommer att bli älskat av alla som provar din mat.


Vad Innebär Det Att Designa Din Egen Matvagn?
Att skapa din egen matvagn är mer än bara att bygga en mobil köksenhet - det är att skapa en scen för ditt kulinariska konstverk, en plats där din passion kommer att blomstra. Med Gastromodul och Deity vid din sida, blir din matvagnsdröm verklighet.
Beställ Din Nytillverkade Matvagn Med 3 Enkla Steg
Klistra in följande länk i din webbläsare: https://gastromodul.se/be-om-offert/
Och följ dessa enkla steg:
Steg 1: Välj Matvagn.
Steg 2: Välj vilken storlek och vilka installationer din verksamhet behöver.
Steg 3: Fyll i dina kontaktuppgifter och specificera om du behöver extra tillval.
PS: Om du skriver "Deity" i fältet för övriga upplysningar, får du ytterligare 2% rabatt på ditt nästa köp!
Vi På GastroModul
Hos oss möts du av ett team specialister som skapar skräddarsydda släpvagnar och matvagnar för att passa ditt unika koncept perfekt. Vår passion är att hjälpa dig förverkliga din idé, oavsett om det rör sig om en mindre glasskiosk, en thaimatvagn med gasolbox eller en sushimatvagn med husformat tak. Inget projekt är för stort eller för litet för oss. Vi ser fram emot att hjälpa dig ta ditt företag till nya höjder!
Comments ()